
Perspective
1" = 4' 0"
/background(fff)/960x806.jpeg?auto=webp)
Physical Model
1" = 8' 0"
/background(fff)/960x297.jpeg?auto=webp)
Section Model
1" = 4' 0"
/background(fff)/960x593.jpeg?auto=webp)
/background(fff)/960x213.jpeg?auto=webp)
Elevations
1" = 4' 0"
/background(fff)/960x213.jpeg?auto=webp)
Sections
1" = 4' 0"
/background(fff)/960x406.jpeg?auto=webp)
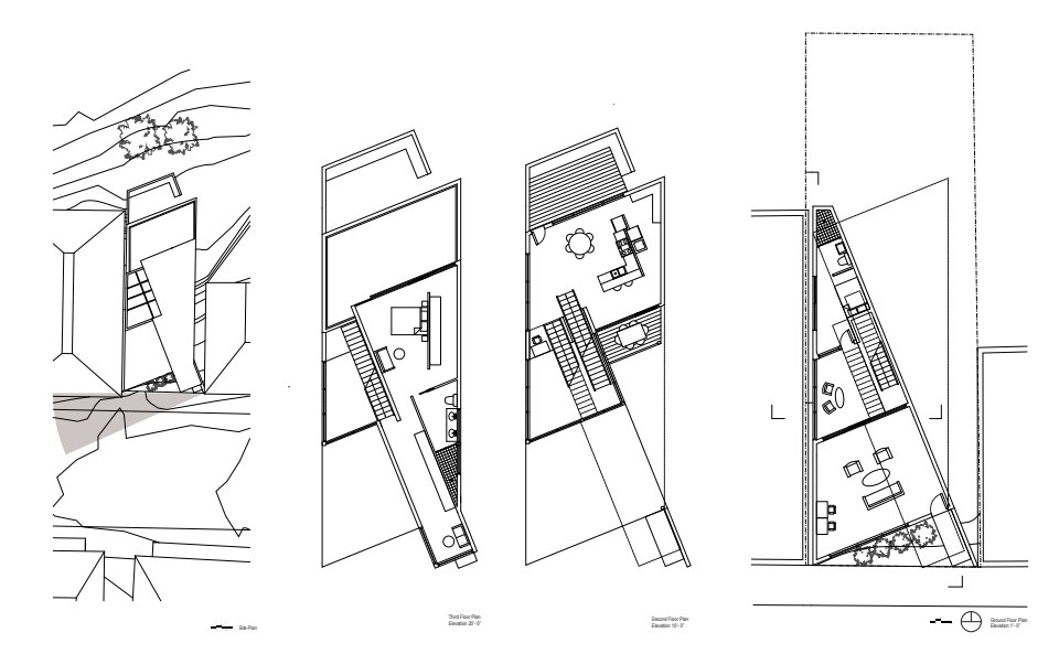
Carroll Street Mill House
The initial design of the house originated from using angles in a studied manner. The massing reflects the angle formed from the site to the Fulton Cotton Mill, so that the house both ‘points’ to the Mill and provides a view of it from the top floor. The angles direct a progression through the house, moving from progressively from public to more private areas, culminating in the master suite. By developing the initial massing into more defined spaces, the house began to frame additional views, both inside and outside. As one moves through the house, the circulation cues the body to notice these sights. The climax occurs in the upper gallery, located in the master bedroom, which provides views of downtown Atlanta and the historic Oakland Cemetery.
For |
Core Studio II |
Date |
Fall 2013 |
Type |
Single Family Home |
Location |
Cabbagetown, Atlanta, GA |
Professor |
Harris Dimitropoulos |